Перейти к содержимому
  • Прямо сейчас
  • Главная
  • Ипотека
  • Культура
  • Общество
  • Спорт
  • Технологии
  • Экономика

Новостной Мир

Весь мир событий в одном информационном пространстве

2f219951a270ce1977afa071ab89d71e
Основное меню
  • Прямо сейчас
  • Главная
  • Ипотека
  • Культура
  • Общество
  • Спорт
  • Технологии
  • Экономика
В реальном времени
  • Главная
  • 2025
  • Сентябрь
  • 1
  • Un Toit — Резиденция для женщин подвергшимся насилию, Франция
  • Прямо сейчас

Un Toit — Резиденция для женщин подвергшимся насилию, Франция

Admin.news
un-toit-rezidencija-dlja-zhenshhin-podvergshimsja-nasiliju-francija-4872a88.jpg

Расположенная в самом центре Парижа, резиденция предлагает убежище женщинам, подвергшимся насилию. Возглавляемый Vilogia Group и управляемый ассоциациями FIT "Une Femme, Un Toit" и "Aurore", она предоставляет временное жилье — важный переходный этап в их путешествии, позволяющий им вновь обрести чувство достоинства и безопасности, прежде чем начать новую главу в своей жизни.

Un Toit - Резиденция для женщин подвергшимся насилию, Франция

Проект представляет собой современное и устойчивое сооружение, вобравшее в себя нормы высококачественной парижской архитектуры и символизирующее чувство стабильности. Благодаря использованию благородных материалов и продуманному подходу к строительству, здание отражает намерение предложить простое, но достойное жилье, далекое от срочности и ненадежности, с которыми ранее сталкивались эти женщины.

Un Toit - Резиденция для женщин подвергшимся насилию, Франция

Масштабная строительная площадка представляла собой сложную техническую задачу, поскольку узкие улицы и ограниченная грузоподъёмность подъездных путей не позволяли подъезжать к ней любой технике весом более 3,5 тонн, включая подъёмные краны. 

Un Toit - Резиденция для женщин подвергшимся насилию, Франция

В результате для реализации проекта потребовались оригинальные решения: разгрузочная платформа за пределами площадки, транспортировка материалов по подземным сетям и ленточным конвейерам, строительное оборудование, доставляемое в комплекте и собираемое на месте, а также полное отсутствие подъёмного крана.

Un Toit - Резиденция для женщин подвергшимся насилию, Франция

Un Toit - Резиденция для женщин подвергшимся насилию, Франция

Из-за полного отсутствия подъёмного крана на стройплощадке и ограничения по весу в 3,5 тонны конструкция выполнена из бетона и блоков для опалубки. Фасад облицован массивным кирпичом на утеплённых стенах.

Un Toit - Резиденция для женщин подвергшимся насилию, Франция

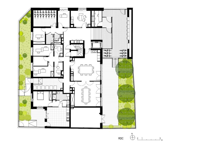
Спроектированный как уютное и безопасное убежище, вход в резиденцию осуществляется через широкое крыльцо, которое обеспечивает плавный переход между внешним миром и личным пространством. Открытый коридор с перекрёстной вентиляцией ведёт к вестибюлю и центральному саду, вокруг которого расположены все жилые помещения общего пользования, озеленённые и залитые солнцем. 

Un Toit - Резиденция для женщин подвергшимся насилию, Франция

Un Toit - Резиденция для женщин подвергшимся насилию, Франция

В том же духе коридоры верхних этажей имеют естественное освещение, что создаёт приятную и успокаивающую атмосферу. Они ведут к 81 компактной, но тщательно оборудованной студии. Большие окна обеспечивают удобную связь с внешним миром, сохраняя при этом как благоустроенность помещений, так и приватность жильцов.

Un Toit - Резиденция для женщин подвергшимся насилию, Франция

Оглавление

Toggle
  • Об авторе
      • Admin.news

Об авторе

Admin.news

Administrator

Перейти на сайт Просмотреть все записи
Средний рейтинг
0 из 5 звезд. 0 голосов.
Вам нужно авторизироваться для того, чтобы проголосовать.

Навигация по записям

Предыдущий Два пенальти, отмена удаления Умярова и изгнание Морено: матч «Спартак» — «Сочи» снова завершился скандалом
Следующий: Придётся всё переделывать: главные ошибки в ремонте жилья своими руками

Связанные истории

4ae46b404444715d71ee1a94652cd.jpeg
  • Прямо сейчас

Надеюсь, правда: Французов-шаромыжников в России опять выставили на мороз — военкор

Admin.news
bf11f1e7feaaa7c13d1a399f3e1adf8e?img-format=auto&img-1-resize=height:350,fit:max&img-2-filter=sharpen
  • Прямо сейчас

В Финляндии напомнили Зеленскому о необходимости явиться в Москву

Admin.news
w720h405fill.webp
  • Прямо сейчас

Тенденция плохая: Россия не решается, а враг наращивает возможности

Admin.news

Свежие записи

  • Надеюсь, правда: Французов-шаромыжников в России опять выставили на мороз — военкор
  • В Финляндии напомнили Зеленскому о необходимости явиться в Москву
  • Тенденция плохая: Россия не решается, а враг наращивает возможности
  • Орбан заявил, что Европейский союз готовится к войне
  • Над девятью регионами России к полудню сбили 125 беспилотников ВСУ

Архивы

  • Март 2026
  • Февраль 2026
  • Январь 2026
  • Декабрь 2025
  • Ноябрь 2025
  • Октябрь 2025
  • Сентябрь 2025
  • Август 2025
  • Июль 2025

Рубрики

  • Ипотека
  • Культура
  • Общество
  • Прямо сейчас
  • Спорт
  • Технологии
  • Экономика

Возможно, вы пропустили

4ae46b404444715d71ee1a94652cd.jpeg
  • Прямо сейчас

Надеюсь, правда: Французов-шаромыжников в России опять выставили на мороз — военкор

Admin.news
bf11f1e7feaaa7c13d1a399f3e1adf8e?img-format=auto&img-1-resize=height:350,fit:max&img-2-filter=sharpen
  • Прямо сейчас

В Финляндии напомнили Зеленскому о необходимости явиться в Москву

Admin.news
w720h405fill.webp
  • Прямо сейчас

Тенденция плохая: Россия не решается, а враг наращивает возможности

Admin.news
1104960171_0:170:2134:1370_2072x0_60_0_0_5954e9b71131862e623ecdeb42979288.jpg
  • Прямо сейчас

Орбан заявил, что Европейский союз готовится к войне

Admin.news
  • Прямо сейчас
  • Главная
  • Ипотека
  • Культура
  • Общество
  • Спорт
  • Технологии
  • Экономика
  • Прямо сейчас
  • Главная
  • Ипотека
  • Культура
  • Общество
  • Спорт
  • Технологии
  • Экономика
Copyright © Все права защищены. | MoreNews от AF themes.